4776 Beach LaneMoclips, WA 98562
Listing courtesy of Jasmin Coleman of Oyhut Bay Realty




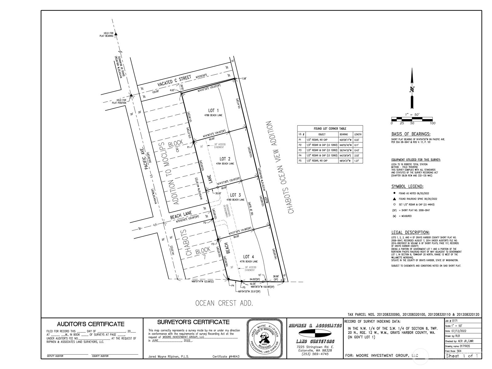
Coastal investment opportunity with ocean view potential! This 1/4+ acre parcel is ideally suited for a custom coastal build or income-producing property, offering flexibility for both personal use and long-term investment strategy. Zoning allows for nightly rentals, creating strong short-term rental potential in a desirable coastal setting where demand continues to grow. A significant portion of the preliminary development work has already been completed, helping reduce uncertainty and accelerate your timeline toward construction. Geotechnical and topographical studies, a boundary survey, and a full wetlands report are all finished—providing valuable site insight and helping minimize upfront risk and planning delays. In addition, electrical, water, and sewer applications and associated equipment have already been paid for, offering a meaningful head start on utility development and overall project readiness. Approved plans for a 2-story duplex are already in place, giving buyers a clear and efficient path forward to begin building and take advantage of the property’s highest and best use potential. Whether you're planning a short-term rental investment, a coastal retreat, or a long-term hold, this parcel is positioned to deliver flexibility and upside. For those looking to scale, additional neighboring parcels are also available (MLS #2509867, 2509868, 2509869), or secure all four together (MLS #2509865) to unlock a larger coastal development play.
| 9 hours ago | Listing updated with changes from the MLS® | |
| 9 hours ago | Status changed to Active | |
| yesterday | Listing first seen on site |
Listing courtesy of Jasmin Coleman of Oyhut Bay Realty
Listing information is provided by Participants of the Northwest MLS. IDX information is provided exclusively for personal, non-commercial use, and may not be used for any purpose other than to identify prospective properties consumers may be interested in purchasing. Information is deemed reliable but not guaranteed. Copyright 2026, Northwest MLS.
All data is obtained from various sources and may not have been verified by the broker or MLS Grid. Supplied open house information is subject to change without notice. All information should be independently reviewed and verified for accuracy. Properties may or may not be listed by the office/agent presenting the information.
Last checked: 2026-04-21 03:14 AM PDT