4784 Beach LaneMoclips, WA 98562
Listing courtesy of Jasmin Coleman of Oyhut Bay Realty




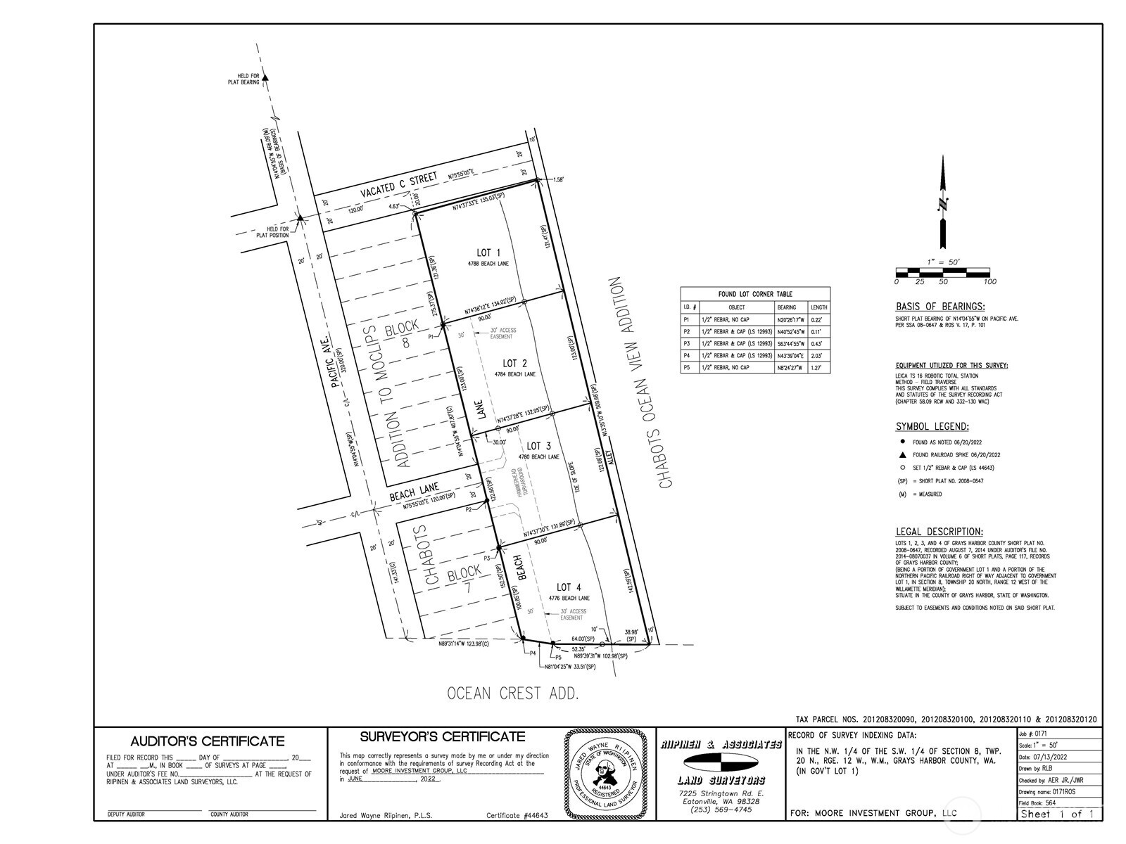
Prime coastal development opportunity with ocean view potential! This 1/4+ acre parcel offers a versatile canvas for your vision—whether you're building a custom coastal residence, a vacation getaway, or an income-producing property. With zoning that allows for nightly rentals, you have the flexibility to enjoy the property for personal use while generating short-term rental income when you're away. A substantial portion of the groundwork has already been completed, helping you save both time and upfront development costs. Geotechnical and topographical studies, a boundary survey, and a full wetlands report are all finished—providing valuable insight and reducing uncertainty as you move toward construction. Electrical applications and required equipment have already been paid for, giving you a meaningful head start, while the seller is actively working to secure water and sewer—further advancing the property’s development readiness. Approved plans for a 2-story duplex are already in place, offering the opportunity to fast-track your build and maximize the property's potential from day one. Whether you're ready to build now or planning for future development, this parcel combines convenience, flexibility, and strong investment upside in a desirable coastal setting. For those with a larger vision, neighboring parcels are also available (MLS #2509867, 2509869, 2509870), or secure all four together (MLS #2509865) to unlock expanded development possibilities
| 9 hours ago | Listing updated with changes from the MLS® | |
| 9 hours ago | Status changed to Active | |
| yesterday | Listing first seen on site |
Listing courtesy of Jasmin Coleman of Oyhut Bay Realty
Listing information is provided by Participants of the Northwest MLS. IDX information is provided exclusively for personal, non-commercial use, and may not be used for any purpose other than to identify prospective properties consumers may be interested in purchasing. Information is deemed reliable but not guaranteed. Copyright 2026, Northwest MLS.
All data is obtained from various sources and may not have been verified by the broker or MLS Grid. Supplied open house information is subject to change without notice. All information should be independently reviewed and verified for accuracy. Properties may or may not be listed by the office/agent presenting the information.
Last checked: 2026-04-21 03:08 AM PDT